Aduro
Aduro 9 Lux Ceramik
Aduro 9 Lux Ceramik
Niedriger Lagerbestand: 2 Auf Lager - In 2-7 Tagen bei Dir Zuhause
Verfügbarkeit für Abholungen konnte nicht geladen werden
Aduro 9 Lux Keramik
Der Aduro 9 Lux Ceramik ist ein außergewöhnlicher Kaminofen, der Ihr Zuhause nicht nur mit Wärme, sondern auch mit einem Hauch von Luxus bereichert. Dieser elegante Holzofen zeichnet sich durch sein ansprechendes Design und seine hohe Effizienz aus, sodass Sie sowohl optisch als auch praktisch davon profitieren. Mit seiner stilvollen Keramikverkleidung passt er perfekt in moderne Wohnräume und schafft eine gemütliche Atmosphäre.
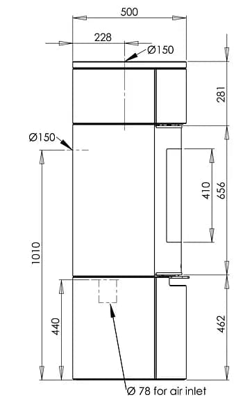
Technische Daten
Mit Aduro-tronic Ausstattung
- Nennleistung: 6,0 kW
- Wirkungsgrad: >80 %
- Energieeffizienzklasse: A+
- Heizfläche: 30-140m²
-
Abmessungen (H x B x T): 139,9 x 54,4 x 50 cm
- Gewicht: 167 kg
- Korpus: Stahl & Keramikverkleidung
- Rauchrohranschluss: Ø 150 mm (Oben oder Hinten)
-
Anschluss an externe Luftzufuhr: Ø 80 mm (unten)
- Brennstoff: Holz
- Max. Scheitholzlänge: 39 cm
- Feuerraumbreite: 40 cm
- Abstand zu brennbaren Bauteilen: vorn 100 cm, seitlich 40 cm, hinten 7,5 cm
- Bauart 1 (selbstschließende Tür-Mehrfachbelegung geeignet)
- EN 13240 zertifiziert
- Erfüllt die BImSchV Stufe 2
- Erfüllt DINplus
Downloads
Prüfgutachten Deutschland und Österreich:
Der Aduro 9 Lux Keramik ist mit den neuesten Heiztechnologien ausgestattet, die sowohl die Brennleistung als auch die Umweltfreundlichkeit maximieren. Dank seiner ausgefeilten Luftzirkulationstechnologie verbrennt das Holz effizienter und produziert so weniger Asche und Rauch. Dadurch reduziert sich der Reinigungsaufwand erheblich und Sie können sich mehr auf das Genießen Ihrer behaglichen Wärme konzentrieren.
Ein weiteres herausragendes Merkmal des Aduro 9 Lux Keramik ist seine Benutzerfreundlichkeit. Mit der intuitiv bedienbaren Steuerung können Sie die Temperatur leicht einstellen und den Kaminofen optimal nutzen. Der großzügige Brennraum bietet Platz für größere Holzscheite, sodass Sie weniger häufig nachlegen müssen. Zudem sorgt die große Glasfront für einen ungestörten Blick auf das brennende Feuer, was das Wohlfühlambiente noch verstärkt.
In puncto Sicherheit geht der Aduro 9 Lux Keramik keine Kompromisse ein. Die hochwertige Verarbeitung und die bewährten Sicherheitsmaßnahmen gewährleisten einen sicheren Betrieb, sodass Sie den Kaminofen bedenkenlos nutzen können. Die Tür ist mit einem sicheren Schließmechanismus ausgestattet, der versehentliches Öffnen verhindert und so für zusätzliche Sicherheit sorgt.
Wenn Sie auf der Suche nach einem erstklassigen Kaminofen sind, der Stil, Komfort und Effizienz miteinander verbindet, ist der Aduro 9 Lux Keramik die perfekte Wahl. Ob kalte Winterabende oder gemütliche Stunden mit der Familie – dieser Holzofen wird Ihr Zuhause in eine warme, einladende Oase verwandeln. Entdecken Sie jetzt die außergewöhnlichen Eigenschaften des Aduro 9 Lux Keramik und lassen Sie sich von seiner Qualität und Eleganz überzeugen.
Share





